01/15 - Lámina resumen Casa Alenquer (Aires Meteus). Localización e información general.

02/15 - Lámina resumen Casa Alenquer (Aires Meteus). Plantas, secciones y vistas interiores.

03/15 - Planta baja Casa Alenquer (Aires Meteus).

04/15 - Planta primera Casa Alenquer (Aires Meteus).

05/15 - Leyenda de muros Casa Alenquer (Aires Meteus).

06/15 - Acabados Casa Alenquer (Aires Meteus).

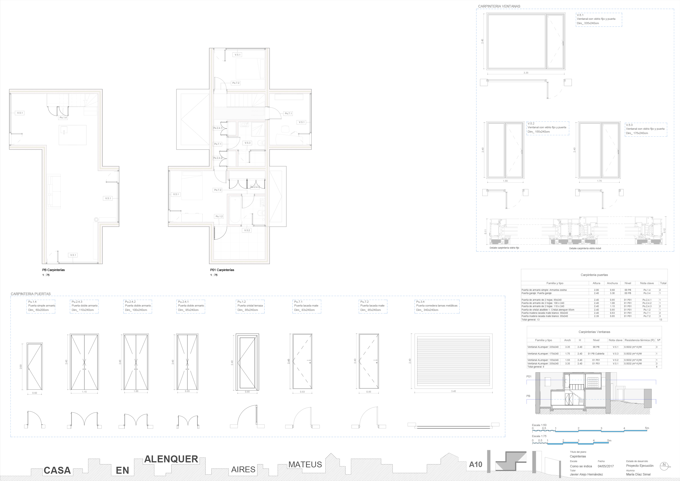
07/15 - Carpinterías Casa Alenquer (Aires Meteus).

08/15 - Sección constructiva Casa Alenquer (Aires Meteus).

09/15 - Cimentaciones Casa Alenquer (Aires Meteus).

10/15 - Soleras Casa Alenquer (Aires Meteus).

11/15 - Forjado tipo Casa Alenquer (Aires Meteus).

12/15 - Detalles constructivos Casa Alenquer (Aires Meteus).

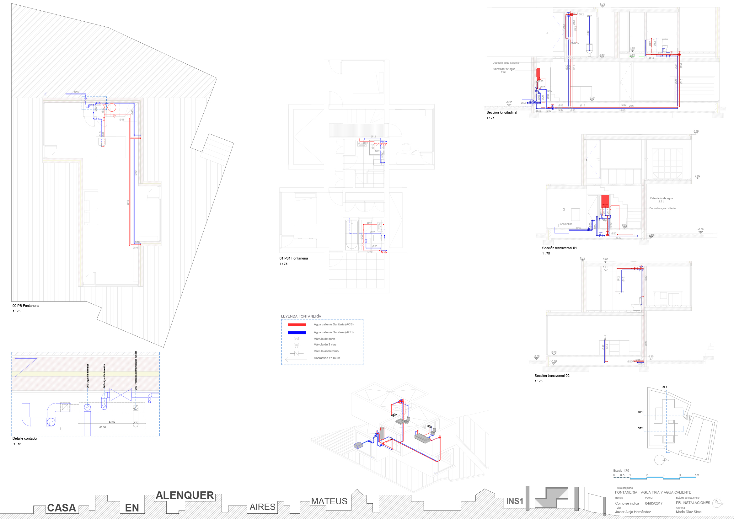
13/15 - Instalaciones de fontanería Casa Alenquer (Aires Meteus).

14/15 - Instalaciones de electricidad Casa Alenquer (Aires Meteus).

15/15 - Instalaciones clima Casa Alenquer (Aires Meteus).

<

>

INICIO

SOBRE MÍ

PROYECTOS

BIM

MAQUETAS

DIBUJOS