1/10 - Ideas iniciales. Planta baja del proyecto final. Relación con el espacio público.

2/10 - Conceptos iniciales. Tanteos de las distintas estrategias espaciales posibles.

3/10 - Recuperación de galerías dentro y fuera del edificio.

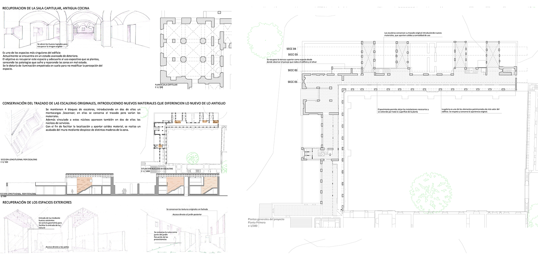
4/10 - Recuperación de la sala capitular. Importancia de recuperar las escaleras.

5/10 - Importancia de los patios. Creación de dobles alturas en las naves adosadas.

6/10 - Recuperación de los alzados originales. Respeto a lo tradicional y propio del lugar.

7/10 - Secciones del proyecto. Se reflejan las ideas expuestas en imágenes anteriores.

8/10 - Axonometría desmontada del conjunto. Se busca fluidez en los espacios.

9/10 - Sección constructiva detallada de una de las naves adosadas.

10/10 - Detalle de las escaleras. Se mantiene el trazado y cambian los materiales.

<

>

INICIO

SOBRE MÍ

PROYECTOS

BIM

MAQUETAS

DIBUJOS